Если цена в объявлении изменится, мы сразу сообщим вам об этом на электронную почту.
Нажимая «Подписаться», вы соглашаетесь с правилами.
продам коттедж, Лесные озера ДПК, 36818 600 000 ₽
11 сен 2024
Дата публикации объявления
Обн. вчера
Дата обновления объявления
17
Количество просмотров (+ просмотры за сегодня)
80 870 ₽/м²
Чистая продажа
Термин "Чистая продажа" означает, что в квартире никто не прописан или
есть куда выписаться и вывезти вещи. Это лучший вариант для покупателя.
Вероятность срыва сделки минимальна.
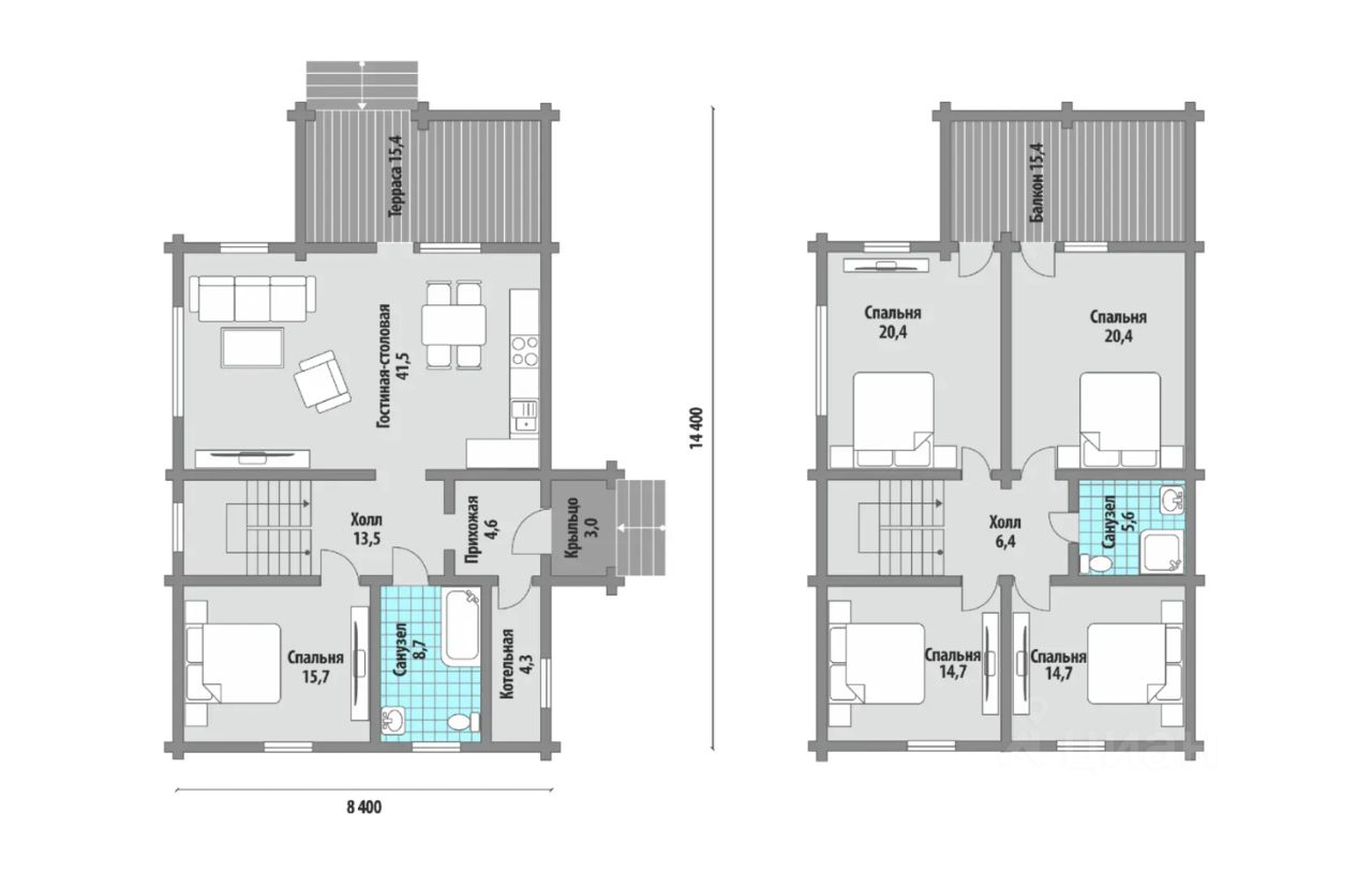
Этажей2
Площадь участка16,05 соток
Общая площадь230 м2
Материал домадерево
ЭлектричествоЕсть
Газоснабжениецентральное
Дом ''Сконти'' 230 кв.м из клееного бруса на участке 16,05 сот. в ''Лесных Озёрах''. Один из самых просторных проектов: первый этаж — огромная гостиная-столовая с выходом на большую террасу, спальня, санузел