Если цена в объявлении изменится, мы сразу сообщим вам об этом на электронную почту.
Нажимая «Подписаться», вы соглашаетесь с правилами.
продам дом, Мичурина проезд, 1014 000 000 ₽
18 июня 2025
Дата публикации объявления
Обн. 9 мая
Дата обновления объявления
25
Количество просмотров (+ просмотры за сегодня)
96 685 ₽/м²
Чистая продажа
Термин "Чистая продажа" означает, что в квартире никто не прописан или
есть куда выписаться и вывезти вещи. Это лучший вариант для покупателя.
Вероятность срыва сделки минимальна.
Этажей2
Площадь участка2 сотки
Общая площадь144,8 м2
Материал домакирпич
ЭлектричествоЕсть
Газоснабжениецентральное
Код объекта: 1637370. Уважаемые покупатели, кто ищет дом в городе. Предлагаю вам обратить внимание на это объявление.
Продается дом в городе Владимир по адресу: проезд Мичурина, 10. Это идеальное место для комфортного проживания. Дом построен в 2005 году из кирпича, что гарантирует его надёжность и долговечность.
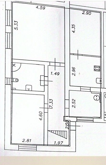
Общая площадь дома составляет 144,8 кв. м, из которых 86 кв. м — жилая площадь. В доме пять комнат расположенны на двух этажах, площадь которых составляет 24,5 кв. м, 12,9 кв. м, 12,6 кв. м, 20 кв. м и 16 кв. м. Также есть кухня площадью 15,9 кв. м, состоящая из двух зон (кухонная - 8,6 и столовая - 7,3 кв.м). В доме два санузла на обоих этажах. В помещениях сделан ремонт. Впрочим, у вас будет возможность сделать переделать его под себя.
Код объекта: 1637370. Уважаемые покупатели, кто ищет дом в городе. Предлагаю вам обратить внимание на это объявление.
Продается дом в городе Владимир по адресу: проезд Мичурина, 10. Это идеальное место для комфортного проживания. Дом построен в 2005 году из кирпича, что гарантирует его надёжность и долговечность.
Общая площадь дома составляет 144,8 кв. м, из которых 86 кв. м — жилая площадь. В доме пять комнат расположенны на двух этажах, площадь которых составляет 24,5 кв. м, 12,9 кв. м, 12,6 кв. м, 20 кв. м и 16 кв. м. Также есть кухня площадью 15,9 кв. м, состоящая из двух зон (кухонная - 8,6 и столовая - 7,3 кв.м). В доме два санузла на обоих этажах. В помещениях сделан ремонт. Впрочим, у вас будет возможность сделать переделать его под себя.
В доме индивидуальное отопление, подведены все необходимые коммуникации: электричество, водоснабжение, газ, канализация. Кровля покрыта профнастилом.
Участок площадью 2 сотки имеет асфальтированный подъезд, окружен кирпичным забором. Дом находится в удобном месте, недалеко от городской инфраструктуры, что обеспечивает лёгкий доступ ко всем необходимым объектам.
В доме сделан косметический ремонт, поэтому можно сразу заселиться или воплотить свои дизайнерские идеи.
Не упустите шанс стать владельцем этого прекрасного дома! Позвоните нам прямо сейчас, чтобы узнать больше и договориться о просмотре.
Мы гарантируем безопасную сделку и юридическую поддержку нашим Клиентам. Поможем одобрить ипотеку с сниженной ставкой.