Если цена в объявлении изменится, мы сразу сообщим вам об этом на электронную почту.
Нажимая «Подписаться», вы соглашаетесь с правилами.
продам 2-к, бульвар Сталинградский, 75 730 067 ₽
16 июля 2025
Дата публикации объявления
Обн. сегодня
Дата обновления объявления
Спецпредложение
Турбо x8
112 575 ₽/м²
Чистая продажа
Термин "Чистая продажа" означает, что в квартире никто не прописан или
есть куда выписаться и вывезти вещи. Это лучший вариант для покупателя.
Вероятность срыва сделки минимальна.
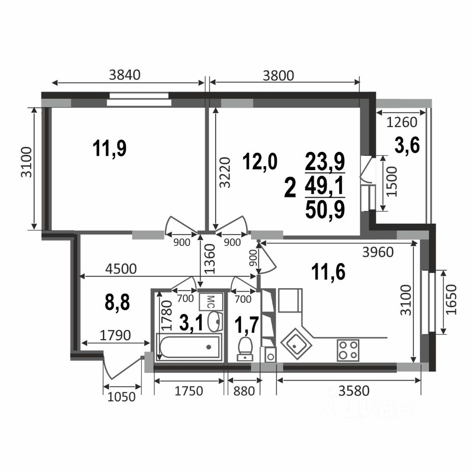
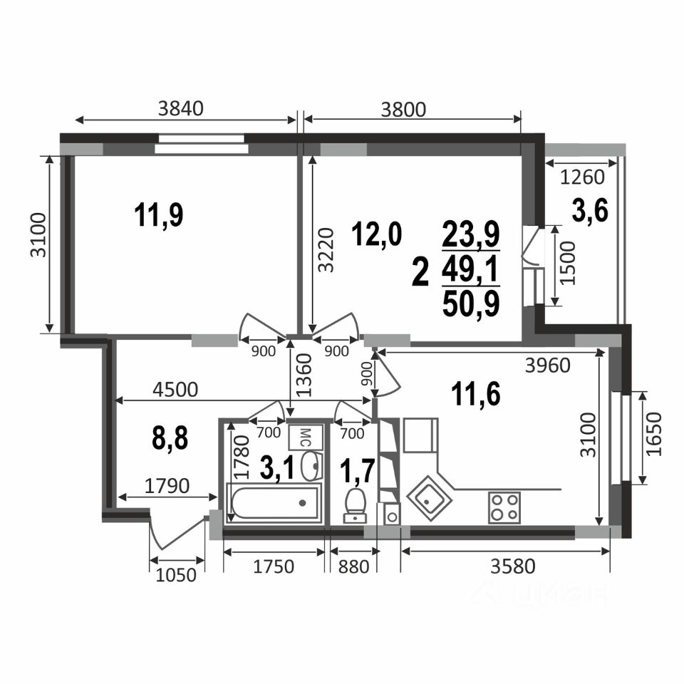
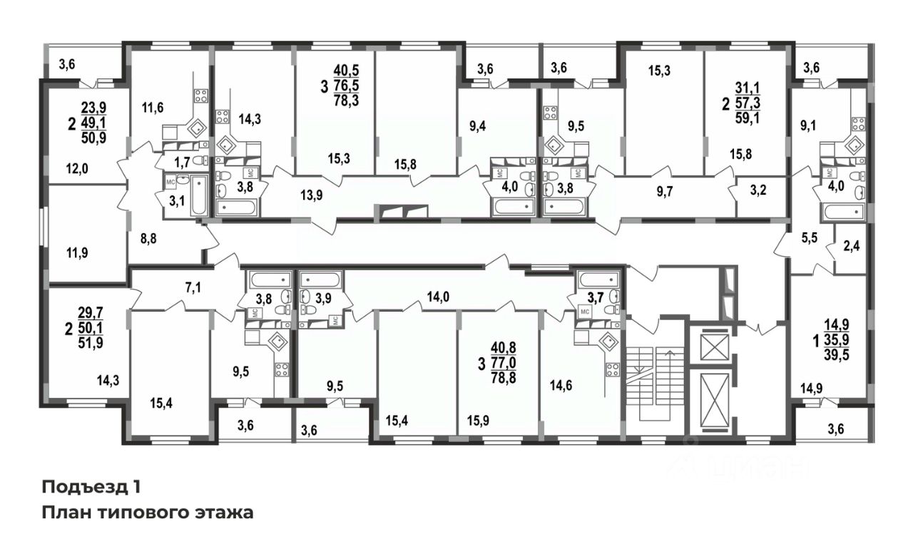
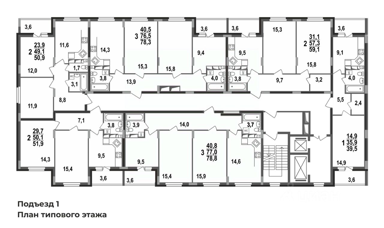
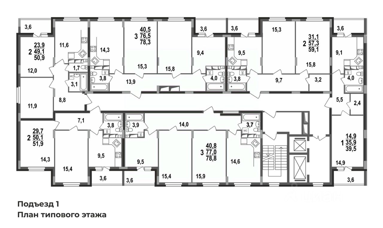
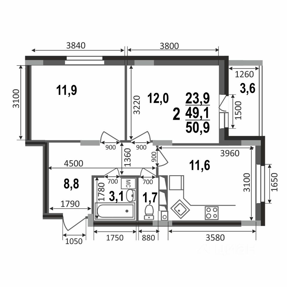
Классическая двухкомнатная квартира 50,9 кв.м на две стороны. В квартире кухня 11,6 кв.м, раздельный санузел, удобная прихожая с нишей для шкафа-купе и 2 спальни по 12 кв.м, в одной из которых предусмотрен выход на лоджию.
Черновая отделка, гарантия на дом 5 лет.
Новый район, новый дом, новая инфраструктура, развитое транспортное сообщение.
Классическая двухкомнатная квартира 50,9 кв.м на две стороны. В квартире кухня 11,6 кв.м, раздельный санузел, удобная прихожая с нишей для шкафа-купе и 2 спальни по 12 кв.м, в одной из которых предусмотрен выход на лоджию.
Черновая отделка, гарантия на дом 5 лет.
Новый район, новый дом, новая инфраструктура, развитое транспортное сообщение.
ЖК Сталинградский бульвар 7 — это 17-этажный монолитный дом, строящийся в рамках смарт-квартала VERIZINO lifе: современный стильный фасадостекленные лоджии во всех квартирахбольшие подъездные холлы на 1 этажесквозные подъезды с выходом как во двор, так и на внешнюю сторону домадизайнерская отделка подъездовдвор без машин с уютными пешеходными, игровыми и спортивными зонами2 лифта в каждом подъездебольшое разнообразие планировочных решенийновый детский садведется строительство новой школымагазины, салоны, детские центры, пункты выдачи интернет-магазинов, остановки
Квартиру можно приобрести несколькими способами: рассрочка от застройщикаипотекаобмен старой квартиры на новую по программе трейд-инматеринский капитал, жилищные сертификаты
Срок сдачи дома: 4 кв.2026 г.
ООО Специализированный застройщик ''СК Континент Сталинградский бульвар''. Проектная декларация на сайте наш.дом.рф. Рассрочку предоставляет застройщик.