Если цена в объявлении изменится, мы сразу сообщим вам об этом на электронную почту.
Нажимая «Подписаться», вы соглашаетесь с правилами.
продам дом, Ленинградская, 1612 900 000 ₽
30 сен
Дата публикации объявления
Обн. вчера
Дата обновления объявления
5
Количество просмотров (+ просмотры за сегодня)
Спецпредложение
Турбо x8
64 500 ₽/м²
Чистая продажа
Термин "Чистая продажа" означает, что в квартире никто не прописан или
есть куда выписаться и вывезти вещи. Это лучший вариант для покупателя.
Вероятность срыва сделки минимальна.
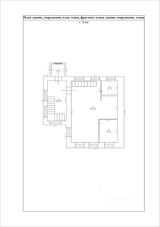
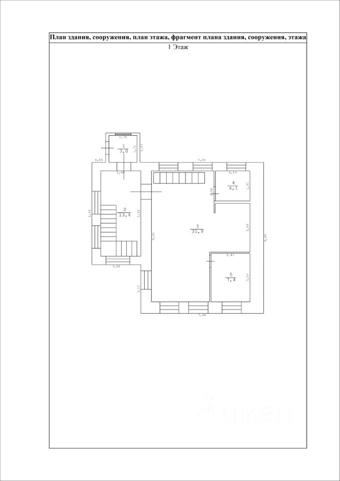
Этажей3
Площадь участка10 соток
Общая площадь200 м2
Материал домакирпич
ЭлектричествоЕсть
Газоснабжениецентральное
Продаётся уютный просторный благоустроенный жилой дом. Расположен в г. Александров, 100 км. от МКАД, р-н Залесье, ул. Ленинградская. Дом кирпичный, 3 этажа. Общая отапливаемая площадь 200 кв.м. В 2018 году произведена полная реконструкция и современный ремонт. Все удобства: отопление от центрального газопровода (котел АГВ), водоснабжение центральное, горячая вода от газового накопительного нагревателя 100 л.. Канализация две выгребные ямы по 5 куб. Электричество 15 кВт. Дом очень теплый и сухой. Вокруг дома сделан дренаж и отмостка. Крыша покрыта оцинкованным металлом со снегозадержателями и отливами. Стены кирпич+ утеплитель 5 см.+сайдинг. Окна все пластиковые. В доме 4 жилые комнаты, кухня-столовая 35 кв.м., спортзал 25 кв.м.
Продаётся уютный просторный благоустроенный жилой дом. Расположен в г. Александров, 100 км. от МКАД, р-н Залесье, ул. Ленинградская. Дом кирпичный, 3 этажа. Общая отапливаемая площадь 200 кв.м. В 2018 году произведена полная реконструкция и современный ремонт. Все удобства: отопление от центрального газопровода (котел АГВ), водоснабжение центральное, горячая вода от газового накопительного нагревателя 100 л.. Канализация две выгребные ямы по 5 куб. Электричество 15 кВт. Дом очень теплый и сухой. Вокруг дома сделан дренаж и отмостка. Крыша покрыта оцинкованным металлом со снегозадержателями и отливами. Стены кирпич+ утеплитель 5 см.+сайдинг. Окна все пластиковые. В доме 4 жилые комнаты, кухня-столовая 35 кв.м., спортзал 25 кв.м., 3 санузла на каждом этаже, котельная, прачечная, кладовая, большие встроенные шкафы, натяжные потолки, остаётся вся мебель и техника. Участок 10 соток, на участке гараж 12х12 с двумя автоматическими воротами на 4 автомобиля с глубоким погребом и смотровой ямой, беседка, хозблок, мангальная зона, качели, детская игровая площадка, батут, бассейн, кунг, курятник, вольер для собаки, теплица. Участок ухожен, огорожен, дорожки покрыты брусчаткой с водостоками, грядки, газон. Много плодово-ягодных насаждений. Цветы. В доме проводной интернет, городской телефон, триколор, домофон. Перед домом большая просторная зона под авто. Хорошие соседи. Подъезд круглый год, зимой чистится. Тихое и зеленое место. В шаговой доступности автобусная остановка, супермаркет Верный, река Серая, озеро Дичково, сосновый бор, детсад, школа. Прямое жд сообщение с Москвой. Возможен обмен на квартиру. Документы все оформлены, в собственности более 15 лет. Возможна ипотека, маткапитал и т.д. Торг.