Если цена в объявлении изменится, мы сразу сообщим вам об этом на электронную почту.
Нажимая «Подписаться», вы соглашаетесь с правилами.
продам 2-к, Родионовка, 4а6 790 000 ₽
3 окт
Дата публикации объявления
Обн. вчера
Дата обновления объявления
3
Количество просмотров (+ просмотры за сегодня)
117 069 ₽/м²
Чистая продажа
Термин "Чистая продажа" означает, что в квартире никто не прописан или
есть куда выписаться и вывезти вещи. Это лучший вариант для покупателя.
Вероятность срыва сделки минимальна.
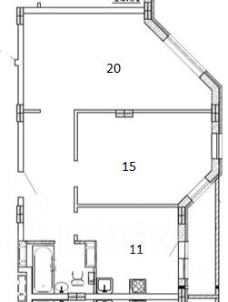
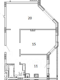
Арт. 118904993 Мкр. Юрьевец, ул. Родионовка, д.4а Предлагается к продаже замечательная двухкомнатная квартира в новом доме на 10 этаже, общей площадью 58 кв.м. Комнаты изолированные. Преимущества квартиры: очень хорошая и удобная планировка: большая кухня-11 м2, две комнаты -20 и 15 м2. Квартира отделана современными материалами: на полу ламинат, натяжные потолки, качественные обои в пастельных тонах. Совмещенный санузел с современной сантехникой, отделанный красивой плиткой. Остается кухонный гарнитур с техникой. Большая застекленная лоджия отделана, и на нее выведен свет. В доме своя крышная газовая котельная, которая в разы снижает коммунальные платежи. Квартира очень светлая, теплая и красивая! Отличное предложение для семьи.
Арт. 118904993 Мкр. Юрьевец, ул. Родионовка, д.4а Предлагается к продаже замечательная двухкомнатная квартира в новом доме на 10 этаже, общей площадью 58 кв.м. Комнаты изолированные. Преимущества квартиры: очень хорошая и удобная планировка: большая кухня-11 м2, две комнаты -20 и 15 м2. Квартира отделана современными материалами: на полу ламинат, натяжные потолки, качественные обои в пастельных тонах. Совмещенный санузел с современной сантехникой, отделанный красивой плиткой. Остается кухонный гарнитур с техникой. Большая застекленная лоджия отделана, и на нее выведен свет. В доме своя крышная газовая котельная, которая в разы снижает коммунальные платежи. Квартира очень светлая, теплая и красивая! Отличное предложение для семьи. Поможем с одобрением ипотеки. Рядом магазины, аптеки, школы 42, 44 , детские сады 11, 82, 105 , остановки авт. 22, 20с, 33с. Квартира готова к продаже. Не упустите отличный вариант! Звоните! Рядом ул. Ноябрьская, Институтский городок, Гвардейская.