Термин "Чистая продажа" означает, что в квартире никто не прописан или
есть куда выписаться и вывезти вещи. Это лучший вариант для покупателя.
Вероятность срыва сделки минимальна.
Квартира
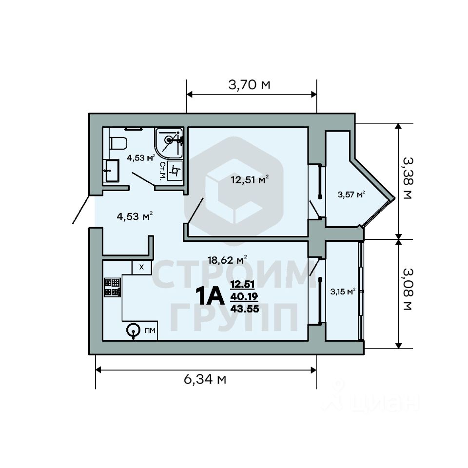
Общая площадь43,55 м2
Жилая площадь12,5 м2
Кухня18,6 м2
Тип собственностидоговор долевого участия
Дом
Срок сдачи3 кв. 2026 г.
Этаж9 из 9
Материал домакирпич
Ключевой особенностью этой однокомнатной квартиры является совмещенная с гостиной кухня общей площадью более 18 квадратных метров. Это позволяет увеличить полезное пространство, как зоны кухни, так и зоны отдыха в гостиной. Отдельно отметим, что из кухни-гостиной есть выход на просторную лоджию площадью 3,15 квадратных метра, а из спальной комнаты на лоджию площадью 3,6 кв. м. При сдаче дома обе лоджии будут остеклены! Также благодаря совмещенной кухни с гостиной, в этой 1-комнатной квартире есть отдельная спальня площадью 12,5 квадратных метров. Планировка комнаты предусматривает нишу для встроенного шкафа для хранения вещей, что позволит не загромождать пространство.
Ключевой особенностью этой однокомнатной квартиры является совмещенная с гостиной кухня общей площадью более 18 квадратных метров. Это позволяет увеличить полезное пространство, как зоны кухни, так и зоны отдыха в гостиной. Отдельно отметим, что из кухни-гостиной есть выход на просторную лоджию площадью 3,15 квадратных метра, а из спальной комнаты на лоджию площадью 3,6 кв. м. При сдаче дома обе лоджии будут остеклены! Также благодаря совмещенной кухни с гостиной, в этой 1-комнатной квартире есть отдельная спальня площадью 12,5 квадратных метров. Планировка комнаты предусматривает нишу для встроенного шкафа для хранения вещей, что позволит не загромождать пространство. Просторная ванная комната площадью 4,5 квадратных метра позволяет разместить унитаз, душевую кабину, раковину и стиральную машину. В прихожей площадью 4,5 квадратных метра есть изолированная зона для уличной обуви. Таким образом, грязь и песок не попадут в квартиру. Предусмотрено место для установки шкафа для верхней одежды и обуви. Доступны такие способы покупки, как наличные, ипотека от ведущих банков (в т.ч. все программы с субсидиями и господдержка), ипотека со снижением ставки за счёт застройщика, рассрочка до 2 лет напрямую от застройщика В цену квартиры сразу входит ремонт в формате White Box с гарантией на все работы!