Если цена в объявлении изменится, мы сразу сообщим вам об этом на электронную почту.
Нажимая «Подписаться», вы соглашаетесь с правилами.
продам земельный участок, с. Алексино9 990 000 ₽
5 ноя
Дата публикации объявления
Обн. 12 мая
Дата обновления объявления
9990 ₽/сотку
Параметры
Площадь участка1000 соток
Канализацияесть
Водаесть
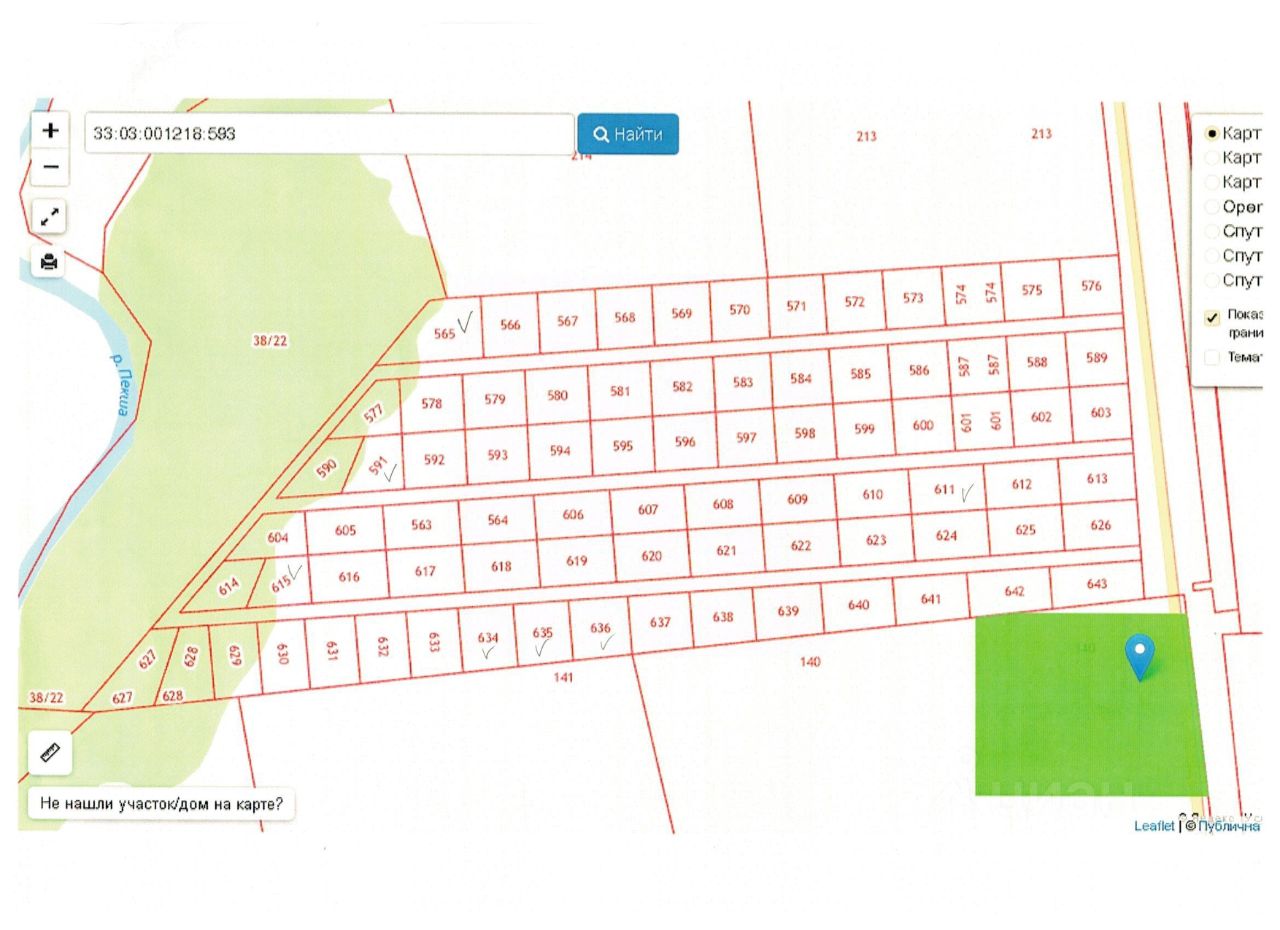
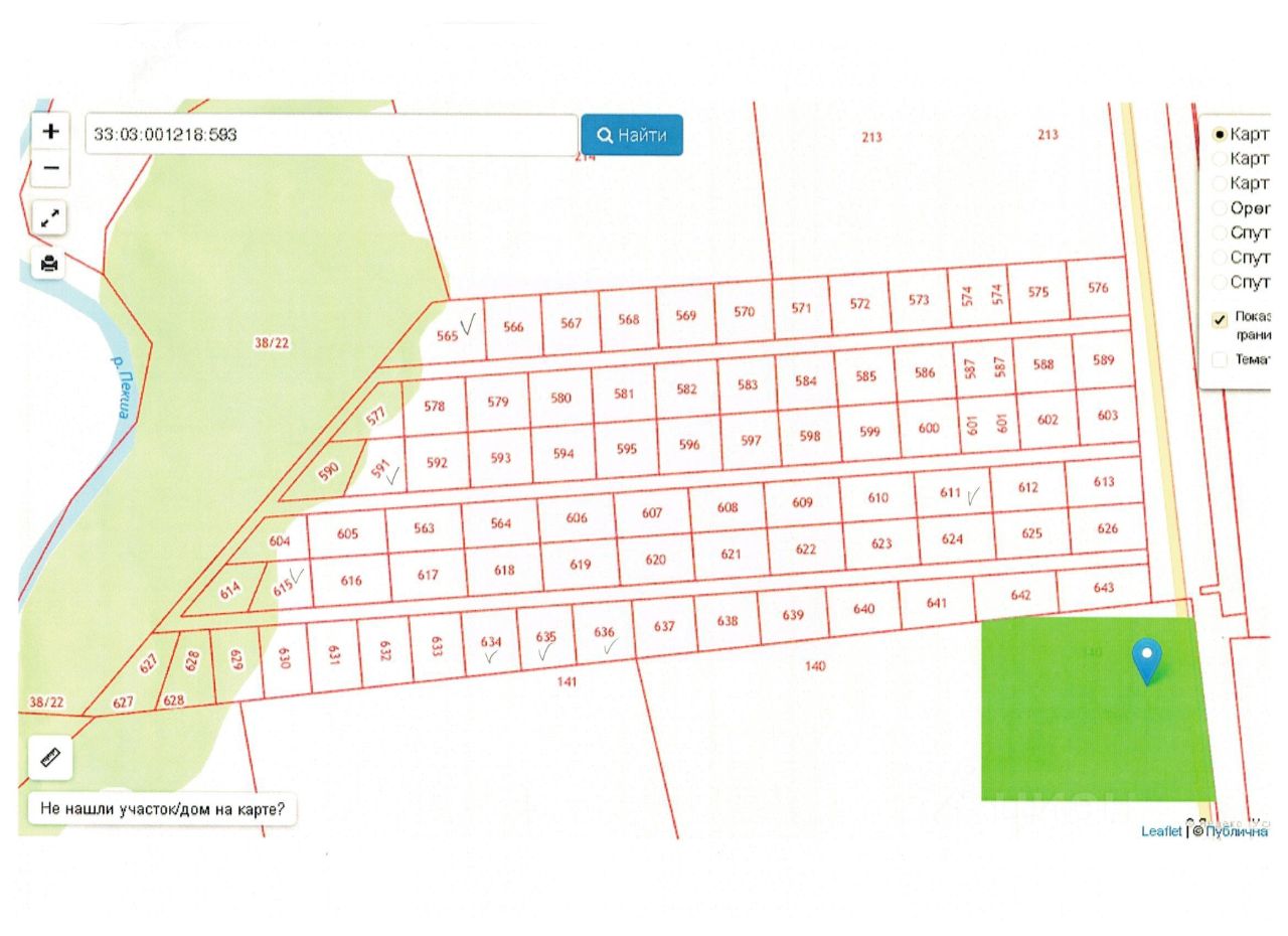
Предлагаю к продаже живописный участок площадью 10 гектаров, расположенный в экологически чистой зоне: между д. Алексино и с. Ильинское, Кольчугинского района Владимирской области, рядом с участком лес и водохранилище. Отличный вариант для тех, кто ищет уединения с природой.
Преимущества участка:
Общая площадь 10 гектаров, участки уже сформированы в количестве 81 и поставлены на кадастровый учет, вид разрешенного использования - дачное строительство. кадастровый номер одного 33:03:001218:597. Один собственник на весь объект! Рядом лес и водохранилище — отличное место для отдыха и рыбалки Газ по границе участка, возможность подключения газа Электроснабжение уже подведено. Установлен новый трансформатор, мощность на каждый участок 15 кВт.
Предлагаю к продаже живописный участок площадью 10 гектаров, расположенный в экологически чистой зоне: между д. Алексино и с. Ильинское, Кольчугинского района Владимирской области, рядом с участком лес и водохранилище. Отличный вариант для тех, кто ищет уединения с природой.
Преимущества участка:
Общая площадь 10 гектаров, участки уже сформированы в количестве 81 и поставлены на кадастровый учет, вид разрешенного использования - дачное строительство. кадастровый номер одного 33:03:001218:597. Один собственник на весь объект! Рядом лес и водохранилище — отличное место для отдыха и рыбалки Газ по границе участка, возможность подключения газа Электроснабжение уже подведено. Установлен новый трансформатор, мощность на каждый участок 15 кВт. напряжение 220-380 В. Идеально подходит для строительства жилого дома, дачи или для ведения хозяйства. Хорошая транспортная доступность. 130 км. от МКАД по Щелковскому шоссе, также можно добраться по Ярославскому направлению. Не упустите шанс стать владельцем этой уникальной земли! Звоните сейчас для получения дополнительной информации и организации просмотра.