Если цена в объявлении изменится, мы сразу сообщим вам об этом на электронную почту.
Нажимая «Подписаться», вы соглашаетесь с правилами.
продам таунхаус, Весенняя, 116 000 000 ₽
10 ноя
Дата публикации объявления
Обн. 29 мая
Дата обновления объявления
5
Количество просмотров (+ просмотры за сегодня)
Топ
45 455 ₽/м²
Чистая продажа
Термин "Чистая продажа" означает, что в квартире никто не прописан или
есть куда выписаться и вывезти вещи. Это лучший вариант для покупателя.
Вероятность срыва сделки минимальна.
Этажей2
Площадь участка2,6 сотки
Общая площадь132 м2
ЭлектричествоЕсть
Газоснабжениецентральное
Продается просторный таунхаус 132 м² с балконом на участке 2,6 сотки в живописном посёлке Сокол Владимирской области.
Отличный вариант для тех, кто ценит комфорт, тишину и природу, не отказываясь от удобств городской жизни.
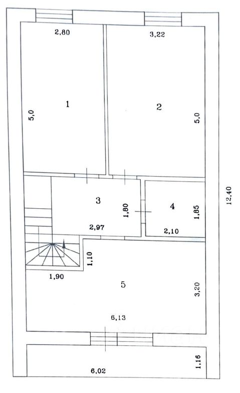
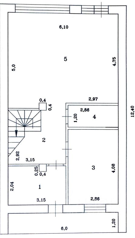
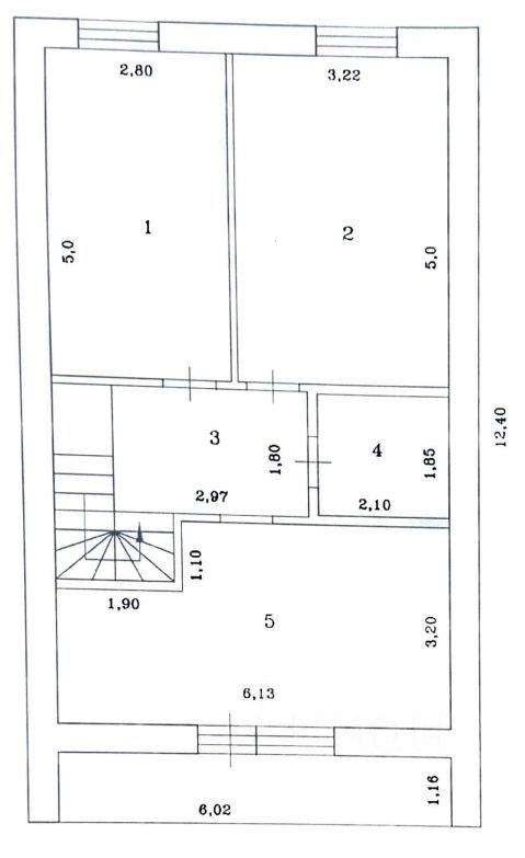
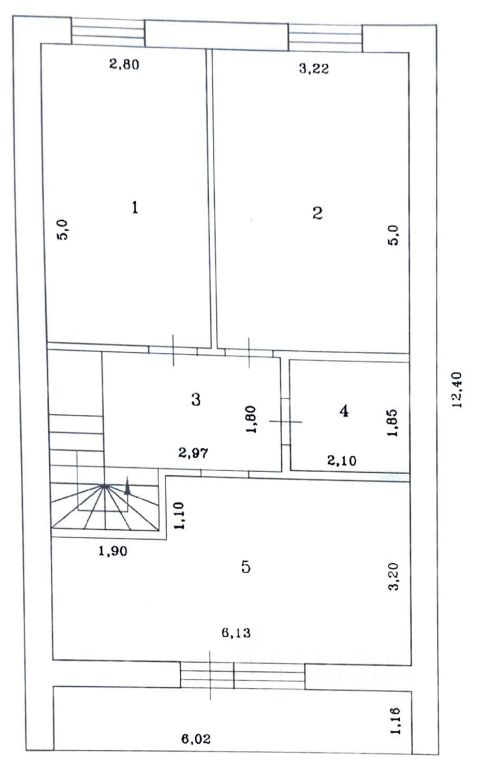
Планировка дома:
• 1-й этаж: большая кухня 11,7 м², светлая гостиная 30 м² (возможна перепланировка с переносом кухни), санузел, выход во двор. Участок можно оборудовать под баню, веранду или детскую игровую зону.
• 2-й этаж: три спальни 16, 17,4 и 14 м², санузел, лоджия с выходом из одной из спален, коридор с возможностью обустройства кладовой.
Конструкция и материалы:
Дом построен из качественного газосиликата по современному проекту.
Продается просторный таунхаус 132 м² с балконом на участке 2,6 сотки в живописном посёлке Сокол Владимирской области.
Отличный вариант для тех, кто ценит комфорт, тишину и природу, не отказываясь от удобств городской жизни.
Планировка дома:
• 1-й этаж: большая кухня 11,7 м², светлая гостиная 30 м² (возможна перепланировка с переносом кухни), санузел, выход во двор. Участок можно оборудовать под баню, веранду или детскую игровую зону.
• 2-й этаж: три спальни 16, 17,4 и 14 м², санузел, лоджия с выходом из одной из спален, коридор с возможностью обустройства кладовой.
Конструкция и материалы:
Дом построен из качественного газосиликата по современному проекту.
Фасад оштукатурен и окрашен, крыша утеплена и покрыта мягкой черепицей, фундамент — надежная монолитная плита.
Инфраструктура и локация:
Посёлок Сокол — спокойное и уютное место с развитой инфраструктурой.
В пешей доступности детский сад, школа, магазины, остановка общественного транспорта (маршрут 102), а в 3 км бассейн в селе Добрынском.
Рядом спортивный стадион для активного отдыха.
Преимущества:
• любые формы оплаты, включая ипотеку с выгодной ставкой,
• помощь в подборе ипотечных программ,
• возможен выбор отделки под ваши предпочтения,
Условия сделки: При 100% оплате действует скидка.
Это отличный вариант для комфортной жизни в экологически чистом районе с развитой инфраструктурой.