Если цена в объявлении изменится, мы сразу сообщим вам об этом на электронную почту.
Нажимая «Подписаться», вы соглашаетесь с правилами.
продам 2-к, Зеленая, 629 600 000 ₽
17 ноя
Дата публикации объявления
Обн. 4 мая
Дата обновления объявления
120 000 ₽/м²
Чистая продажа
Термин "Чистая продажа" означает, что в квартире никто не прописан или
есть куда выписаться и вывезти вещи. Это лучший вариант для покупателя.
Вероятность срыва сделки минимальна.
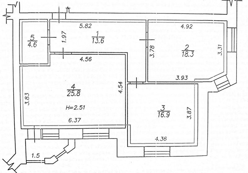
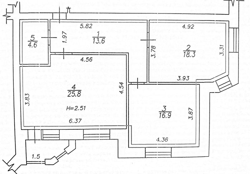
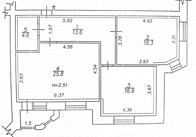
Продаю 2-комн. кв-ру на ул. Зеленая 62 , мкр-н Коммунар (рядом улицы Судогодское шоссе, Песочная, Центральная), 4\5 кирпичного дома (дом 2000 года постройки). 80\35\26. Рациональная планировка- кухня-гостиная с выходом на лоджию, две изолированные комнаты, одна из них с двумя окнами, с\у совмещенный, просторный коридор. Состояние отличное, год назад был сделан капитальный ремонт, окна - деревянные стеклопакеты, лоджия застеклена, натяжные потолки, с\у в кафеле. В каждой комнате установлен кондиционер, на радиаторах вентили для регулировки тепла. Квартира светлая, теплая, находится на среднем этаже в середине дома. Остается встроенный кухонный гарнитур с посудомоечной машиной, шкафы в коридоре и в комнате, мебель в детской комнате. На площадке, тамбур на две квартиры.
Продаю 2-комн. кв-ру на ул. Зеленая 62 , мкр-н Коммунар (рядом улицы Судогодское шоссе, Песочная, Центральная), 4\5 кирпичного дома (дом 2000 года постройки). 80\35\26. Рациональная планировка- кухня-гостиная с выходом на лоджию, две изолированные комнаты, одна из них с двумя окнами, с\у совмещенный, просторный коридор. Состояние отличное, год назад был сделан капитальный ремонт, окна - деревянные стеклопакеты, лоджия застеклена, натяжные потолки, с\у в кафеле. В каждой комнате установлен кондиционер, на радиаторах вентили для регулировки тепла. Квартира светлая, теплая, находится на среднем этаже в середине дома. Остается встроенный кухонный гарнитур с посудомоечной машиной, шкафы в коридоре и в комнате, мебель в детской комнате. На площадке, тамбур на две квартиры. Нет проблем с парковкой. В доме свое ТСЖ. Самый комфортный район города для проживания семье с детьми. Из окна видна новая школа и д\сад,супермаркеты, до центра города 5 мин езды. Рядом хвойный лес, водоемы, парк, остановка общественного транспорта. 9 млн 600 тыс руб