Если цена в объявлении изменится, мы сразу сообщим вам об этом на электронную почту.
Нажимая «Подписаться», вы соглашаетесь с правилами.
продам коттедж, Мирская Гора8 700 000 ₽
1 дек
Дата публикации объявления
Обн. вчера
Дата обновления объявления
19
Количество просмотров (+ просмотры за сегодня)
Спецпредложение
Турбо x8
75 000 ₽/м²
Чистая продажа
Термин "Чистая продажа" означает, что в квартире никто не прописан или
есть куда выписаться и вывезти вещи. Это лучший вариант для покупателя.
Вероятность срыва сделки минимальна.
Этажей2
Площадь участка7,5 соток
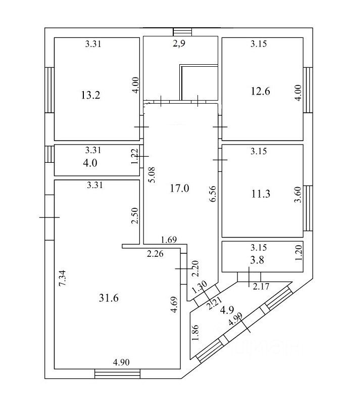
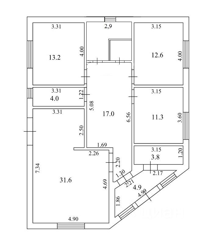
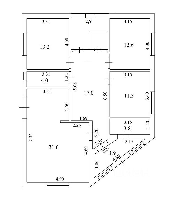
Общая площадь116 м2
ЭлектричествоЕсть
Газоснабжениецентральное
АКЦИЯ!!! ТОЛЬКО ДО 1 ИЮНЯ ЦЕНА СНИЖЕНА!!! Продажа напрямую от застройщика. Дом подходит под все льготные ипотечные программы: * Семейная ипотека от 6% (для семей с 1 ребенком до 7 лет / 2 детьми до 18 лет) * IT-ипотека от 6% * Первоначальный взнос — от 20%. Продается новый, современный коттедж 116 м² в г. Владимир, мкр-н Мосино (рядом Спасское, Немцово, Оборино, Юрьевец). Комплексная застройка, целая улица типовых одноэтажных домов, сдача 1 кв 2026 год. Идеальный вариант для тех, кто хочет сменить городскую квартиру на собственный дом с участком, не теряя в комфорте. Всего 10 минут езды до ТЦ ''Лента'' и всей инфраструктуры. О ДОМЕ И ПЛАНИРОВКЕ: * Материал: Газобетон (теплый и надежный). * Площадь: 116 м².
АКЦИЯ!!! ТОЛЬКО ДО 1 ИЮНЯ ЦЕНА СНИЖЕНА!!! Продажа напрямую от застройщика. Дом подходит под все льготные ипотечные программы: * Семейная ипотека от 6% (для семей с 1 ребенком до 7 лет / 2 детьми до 18 лет) * IT-ипотека от 6% * Первоначальный взнос — от 20%. Продается новый, современный коттедж 116 м² в г. Владимир, мкр-н Мосино (рядом Спасское, Немцово, Оборино, Юрьевец). Комплексная застройка, целая улица типовых одноэтажных домов, сдача 1 кв 2026 год. Идеальный вариант для тех, кто хочет сменить городскую квартиру на собственный дом с участком, не теряя в комфорте. Всего 10 минут езды до ТЦ ''Лента'' и всей инфраструктуры. О ДОМЕ И ПЛАНИРОВКЕ: * Материал: Газобетон (теплый и надежный). * Площадь: 116 м². * Планировка: Продумана для комфортной семейной жизни: * Просторная кухня-гостиная — место сбора всей семьи. * 3 изолированные спальни. * Ванная комната. * Отдельный санузел. * Котельная. * Гардеробная. ГОТОВНОСТЬ ''WHITE BOX'' (ПОД ЧИСТОВУЮ ОТДЕЛКУ): Все коммуникации подведены и разведены по точкам. Это позволяет сделать финальный ремонт в кратчайшие сроки и быстро переехать! * ОТОПЛЕНИЕ: Двухконтурный газовый котел. * КОМФОРТ: Теплые полы по ВСЕЙ площади дома. * ВОДА: Индивидуальная скважина (чистая вода без счетов). * КАНАЛИЗАЦИЯ: Индивидуальный септик (современный, без запаха). УЧАСТОК И РАСПОЛОЖЕНИЕ: * Участок: 7.5 сотки, ровный, правильной формы. Достаточно места для зоны отдыха и гаража. * Локация: Вся городская инфраструктура в 10 минутах. * Природа: Рядом лес и чистый водоем. * Для Москвы: Удобный выезд, 180 км от МКАД. УСЛОВИЯ СДЕЛКИ: * Прямая продажа от застройщика. * Полное юридическое сопровождение. * Помощь в одобрении льготной ипотеки. * возможность дополнительной скидки. * Любая форма оплаты. Цена: 8 700 000 руб. (действует до 1 июня 2026 г.)