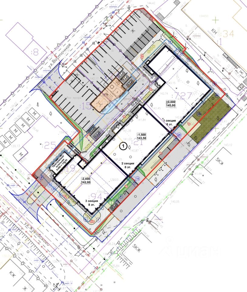
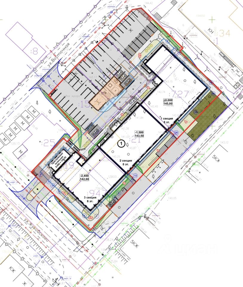
Жилой дом находится на улице Жуковского. Расположен внутри жилой зоны, на удалении от главных шумных улиц города. В непосредственной близости от проектируемого жилого дома размещены необходимые объекты инфраструктуры:
-детские сады
-школа
-магазины
-спортивные площадки
-пункты выдачи заказов.
Преимущества района в экологичности, близости от остановок общественного транспорта и развитой инфраструктуре.
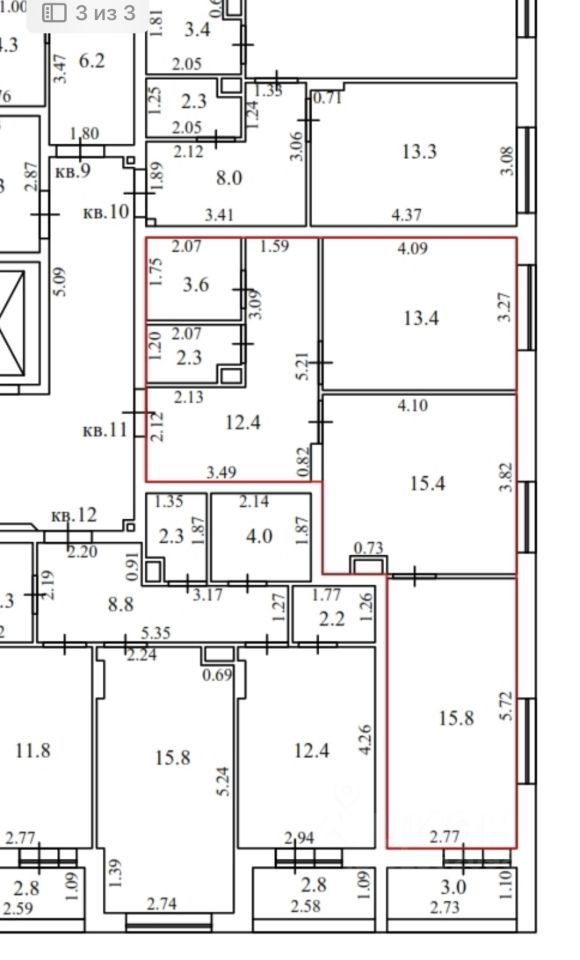
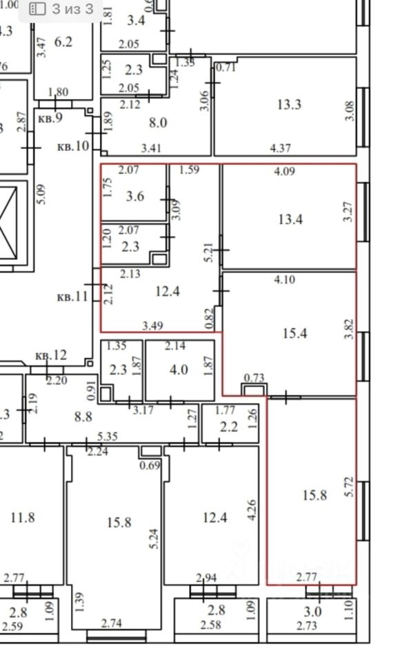
Продажа от собственника.
Квартира в ипотеке.
Без ремонта.








