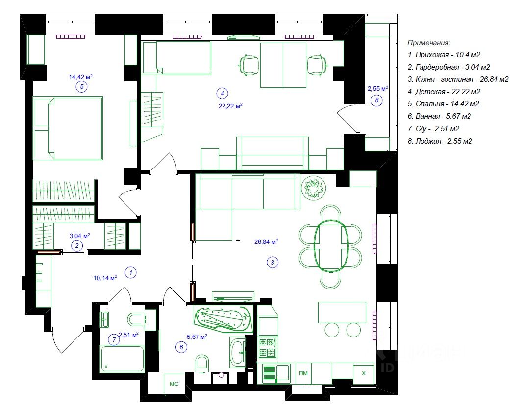
Предлагаю к покупке трех комнатную квартиру с дизайнерским ремонтом и современными решениями в планировке. В результате Вы получаете максимально используемый полезный объем квартиры при высоте потолков 2.7 м, наличие двух санузлов,гардеробной, просторной кухни-гостинной и комнаты комфортной площади. Квартира интересна различным группам потребителей по нескольким причинам: - Вы молодая семья эта квартира даст ощущение простора и современности, приглашать и общаться с друзьями, при этом не в ущерб личному пространству, - Вы семья с детьми , квартира позволяет удовлетворить все Ваши потребности, утром не ждать когда освободиться санузел, есть еще один. Проводить время в месте в просторной кухне-гостинной и т.д.
Предлагаю к покупке трех комнатную квартиру с дизайнерским ремонтом и современными решениями в планировке. В результате Вы получаете максимально используемый полезный объем квартиры при высоте потолков 2.7 м, наличие двух санузлов,гардеробной, просторной кухни-гостинной и комнаты комфортной площади. Квартира интересна различным группам потребителей по нескольким причинам: - Вы молодая семья эта квартира даст ощущение простора и современности, приглашать и общаться с друзьями, при этом не в ущерб личному пространству, - Вы семья с детьми , квартира позволяет удовлетворить все Ваши потребности, утром не ждать когда освободиться санузел, есть еще один. Проводить время в месте в просторной кухне-гостинной и т.д., - Вы работаете дома, квартира позволяет оформить рабочий кабинет при этом не ограничивая в комфорте, - Парам у кого уже взрослые дети и живут отдельно, просторная гостинная позволяет проводить время и встречать гостей, комната для для внуков или для задержавшихся гостей), - *Одинокие профессионалы'' -просторная гостиная и кухня позволяют принимать гостей и устраивать мероприятия. -'' Инвесторы'' или Компании могут использовать как представительскую квартиру .... И так продолжать можно долго т.к. квартира дает ощущение комфорта и удовлетворения и подходит под разные потребности. Так же из многих преимуществ отмечу локацию дома, она обеспечивает максимально комфортное проживание. В радиусе 200м большое количество магазинов разного назначения продовольственные, хозяйственные , автозапчасти и т.д. Точки общественного питания. Большое кол-во детских учреждений школы, 49, 39, 23,9.детские сады, учреждения дополнительного образования, где есть группы продленного дня. Удобный выезд как на ул. Нижняя Дуброва, так и выезд на ул. 3я Кольцевая, с дальнейшим выездом на пр-т Ленина,в районе ''Киномакс Буревестник'', что позволяет миновать большой участок утренней пробки. Реальному покупателю, возможен, торг. Успей быть первым СЧАСТЛИВЧИКОМ и приобрети свое комфортное будущее!!!