сдам универсальное помещение, Ленина, 379990 ₽ в месяц
18 фев
Дата публикации объявления
Обн. 4 апр
Дата обновления объявления
300 ₽/м² в месяц
Параметры
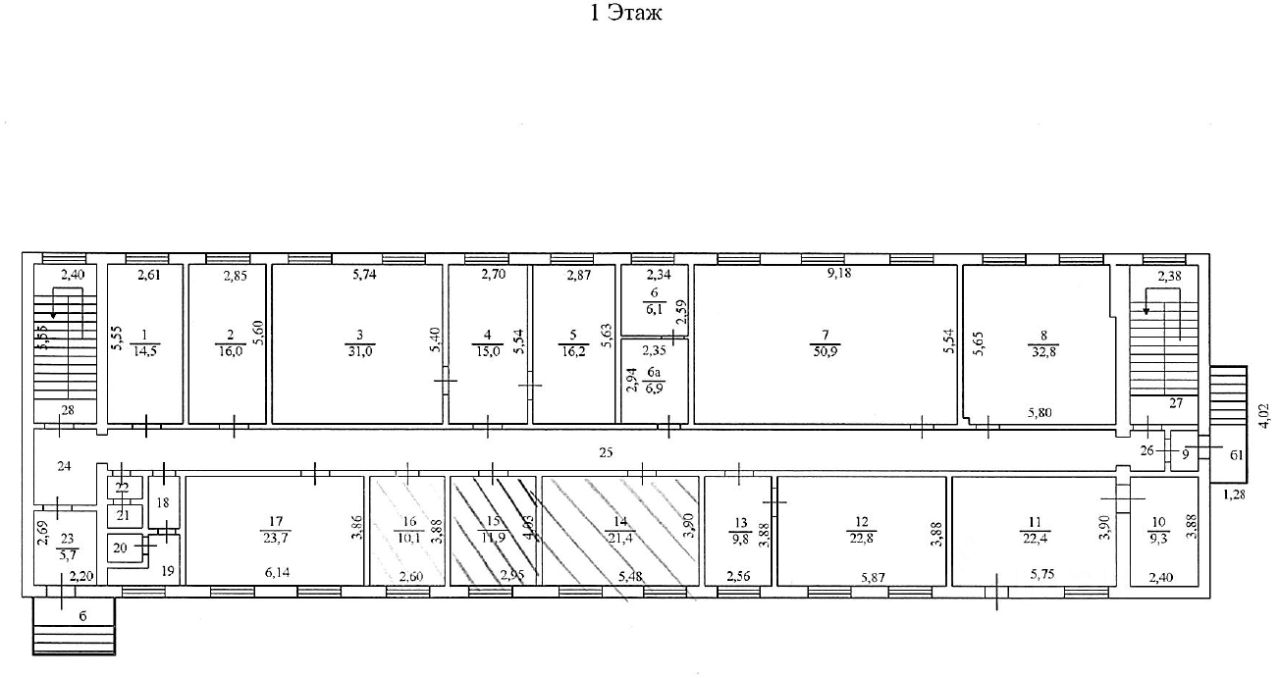
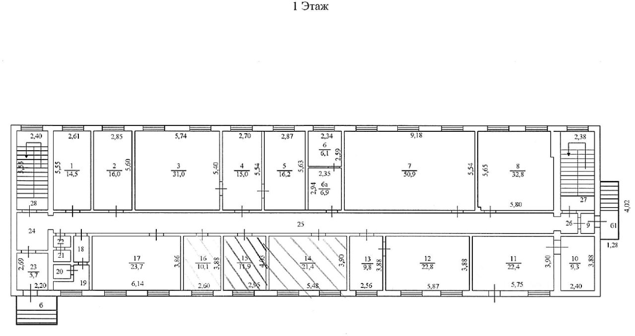
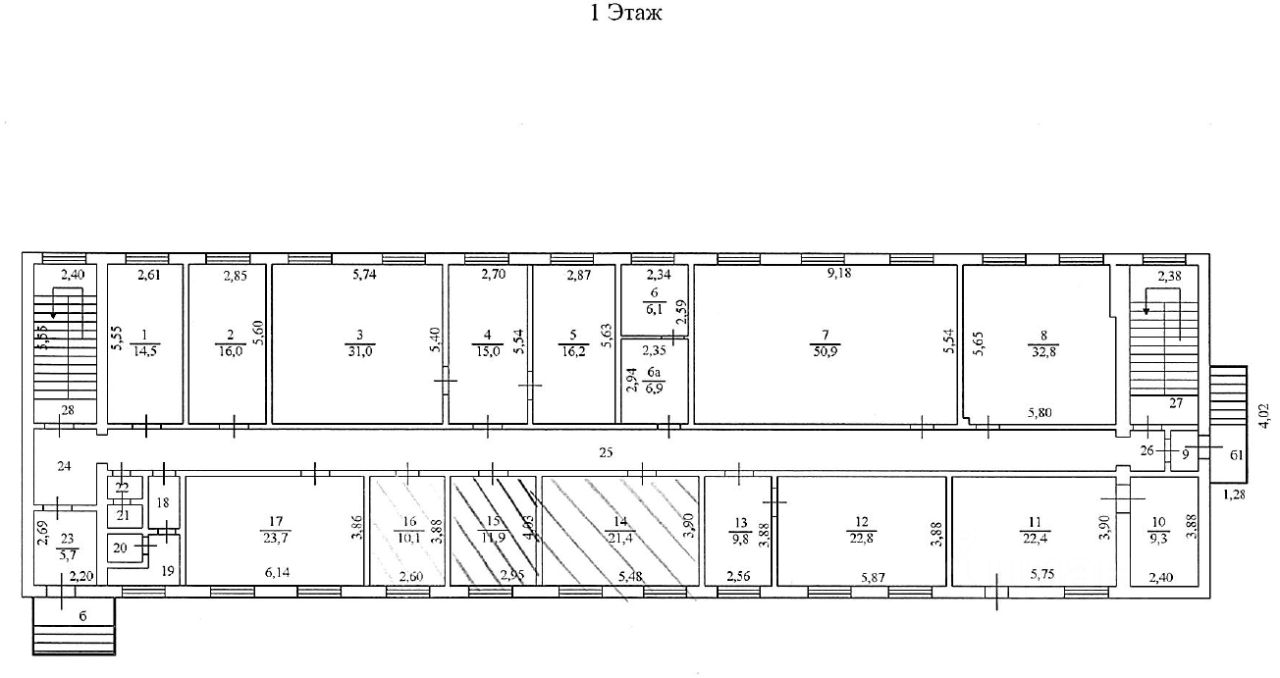
Общая площадь33,3 м2
Этаж1
Сдаются помещения в центре города общей площадью 33,3 кв.м. на 1 этаже административного здания.
Планировка кабинетная. Санузел на этаже. Круглосуточная охрана.
Рядом улицы Московская, Пролетарская, Советская. В окружении развитая инфраструктура: городская администрация, районный суд, Россельхозбанк, Почта России, школы,музеи и парки, жилая застройка. Высокий пешеходный трафик.
Теплоснабжение, водопотребление, электроснабжение включены в стоимость аренды.
Стоимость аренды 9990 руб. в месяц.
Сдаются помещения в центре города общей площадью 33,3 кв.м. на 1 этаже административного здания.
Планировка кабинетная. Санузел на этаже. Круглосуточная охрана.
Рядом улицы Московская, Пролетарская, Советская. В окружении развитая инфраструктура: городская администрация, районный суд, Россельхозбанк, Почта России, школы,музеи и парки, жилая застройка. Высокий пешеходный трафик.
Теплоснабжение, водопотребление, электроснабжение включены в стоимость аренды.
Стоимость аренды 9990 руб. в месяц.
Дополнительные возможности (в случае необходимости): - подключение городского телефона, высокоскоростного Интернета, видеонаблюдения, - предоставление юридического адреса.
Преимущества: - аренда от собственника ПАО ''Ростелеком'', - чистота сделки, - возможность заключения долгосрочного договора.
Цена указана с учетом НДС 22%.
Звоните, с удовольствием ответим на все вопросы и организуем показ в удобное для вас время.