3-к, бульвар Сталинградский, 7 Показать на карте
Октябрьский район
Владимир
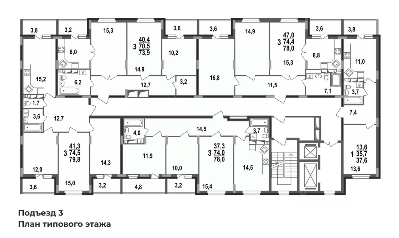
Идеальное пространство для вашей семьи - трёхкомнатная квартира 79,5 кв.м.Особенности квартиры: три светлые комнаты (14/15/15 кв.м), предоставляющие простор для отдыха и личного пространства для каждого члена семьи, гардеробная, обеспечивающая удобство и порядок в доме, раздельный санузел для максимального комфорта и удобства, функциональная кухня с выходом на лоджию, где можно наслаждаться утренним кофе. Черновая отделка, гарантия на дом 5 лет. Новый район, новый дом, новая инфраструктура, развитое транспортное сообщение. В ЖК Сталинградский бульвар 7 все подъезды являются семейными секциями. Весь дом ориентирован на проживание семей с детьми, более 80% квартир являются многокомнатными. ЖК Сталинградский бульвар 7 — это 17-этажный монолитный дом, строящийся в рамках смарт-квартала VERIZINO lifе: современный стильный фасад остекленные лоджии во всех квартирах большие подъездные холлы на 1 этаже сквозные подъезды с выходом как во двор, так и на внешнюю сторону дома дизайнерская отделка подъездов двор без машин с уютными пешеходными, игровыми и спортивными зонами 2 лифта в каждом подъезде большое разнообразие планировочных решений новый детский сад ведется строительство новой школы магазины, салоны, детские центры, пункты выдачи интернет-магазинов, остановки Квартиру можно приобрести несколькими способами: рассрочка от застройщика ипотека обмен старой квартиры на новую по программе трейд-ин материнский капитал, жилищные сертификаты Срок сдачи дома: 4 кв.2026 г. ООО Специализированный застройщик ''СК Континент Сталинградский бульвар''. Проектная декларация на сайте наш.дом.рф. Рассрочку предоставляет застройщик.
79 м2
11 / 17 этаж
Кирпич - монолит
- Показать контакты
- Добавить в избранное
79 м2
11 / 17 этаж
Кирпич - монолит
8 383 275
105 450 /м2
Новостройка,
IV-2026
IV-2026
