Коттедж, Всесвятская, 9д Показать на карте
Ленинский район
Владимир
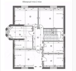
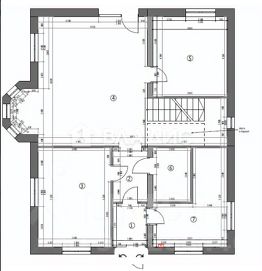
Арт. 101367993 Срочно! Лучшая цена в городе!Отличное приобретение современного дома по очень выгодной стоимости!!!Сегодня найти привлекательное место для постоянного проживания не так уж и легко, потому как необходимо, чтобы по близости были объекты инфраструктуры. И, конечно же, лучше, чтобы до них можно было добраться пешком или по крайней мере на общественном транспорте.Данный коттедж находится в таком месте, где есть практически все, что может потребоваться для комфортной жизни.Предлагается просторный, полностью кирпичный 3-х уровневый коттедж, построенный по индивидуальному проекту общей площадью 433 кв.м. с земельным участком 12 соток расположенный по адресу: г. Владимир, мкр. Юрьевец.Коттедж с предчистовой отделкой, построен из материалов высокого качества: фундамент блочный, внешние стены - кирпич двойной, черновой и керамический, перекрытие железобетонные блоки, фасад выполнен из облицовочного кирпича, перегородки кирпич, крыша металлочерепица Гранд Лайн. Ламинированные стеклопакеты (3 стекла 2 камеры), залита монолитная лестница, установлена входная дверь с терморазрывом, залита монолитная дорожка и отмостка вокруг дома. Планировка удачная. Подойдёт для любой семьи. Цокольный этаж: подсобные помещения + котельная.1этаж: две комнаты + гостиная + холл + кухня + санузел + душевая + гардеробная.2этаж: 5 комнат +коридор + санузел.Коммуникации: отопление газ, канализация -септик, вода-колодец. Тихий микрорайон, хорошая транспортная доступность. Вся необходимая инфраструктура находится в пешей доступности: сетевые магазины, школы, детские сады, рынок и т.д.Помогу с одобрением ипотеки на самых выгодных условиях для покупки ''ДОМА ВАШЕЙ МЕЧТЫ''.Полное юридическое сопровождение сделки в подарок!!!
433 м2
3 этажа
Кирпич
- Показать контакты
- Добавить в избранное
433 м2
3 этажа
Кирпич
14 200 000
32 794 /м2
