Дом, Большая Шепелевская Показать на карте
Октябрьский район
Владимир
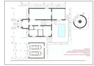
Дом спроектирован архитектурным бюро VMPROJECT — сдержанная, современная архитектура, естественно вписанная в природный ландшафт. Натуральные материалы в фасадном решении, спокойная геометрия и выверенные пропорции создают цельный и спокойный образ дома, не вступающего в конфликт с окружающей средой.Функциональная планировка продумана для комфортной жизни большой и гостеприимной семьи: просторная кухня-гостиная , с обеденной зоной, 2 детских спальни , мастер блок (спальня, гардеробная, ванная комната), гостевая спальня/еще одна детская/уютный рабочий кабинет, на Ваш выбор.При покупке, в подарок — дизайн-проект интерьера. Мы профессионально занимаемся проектированием и реализацией интерьеров, поэтому есть возможность полностью воплотить проект и создать пространство под себя, не переплачивая за чужой ремонт. Дом продаётся как архитектурно завершённая основа — с технической базой и свободой индивидуального наполнения.Тишина, близость к природе и ощущение загородной жизни сочетаются с быстрой доступностью всей городской инфраструктуры Владимира.Технические характеристики:— Общая площадь дома: 135 кв.м— Конструктив: газоблок, фундамент — монолитная бетонная плита.— Кровля: кликфальц, гарантирующий надежность и эстетичный внешний вид.— Фасад: обшивка натуральным деревом (сосна / ель) с долговечным профессиональным финишным покрытием.— Выполнена внутренняя штукатурка.— Коммуникации: электричество заведено и подключено, собственная скважина, септик, дренаж по контуру дома.— Газ подведён по границе участка, договор заключен, врезка выполнена. Завод газа осуществляется по инд.проекту.— Участок: 8.3 сотки, выполнено выравнивание, сформирована улица с удобным подъездом.— Локация: д. Шепелево, 15 минут до центра Владимира, городская прописка.— В пешей доступности: остановка общественного транспорта, сетевой магазин.
135 м2
1 этаж
- Показать контакты
- Добавить в избранное
135 м2
1 этаж
15 800 000
117 037 /м2
