Дом, д. Наумово (Александровский район) Показать на карте
д. Наумово (Александровский район)
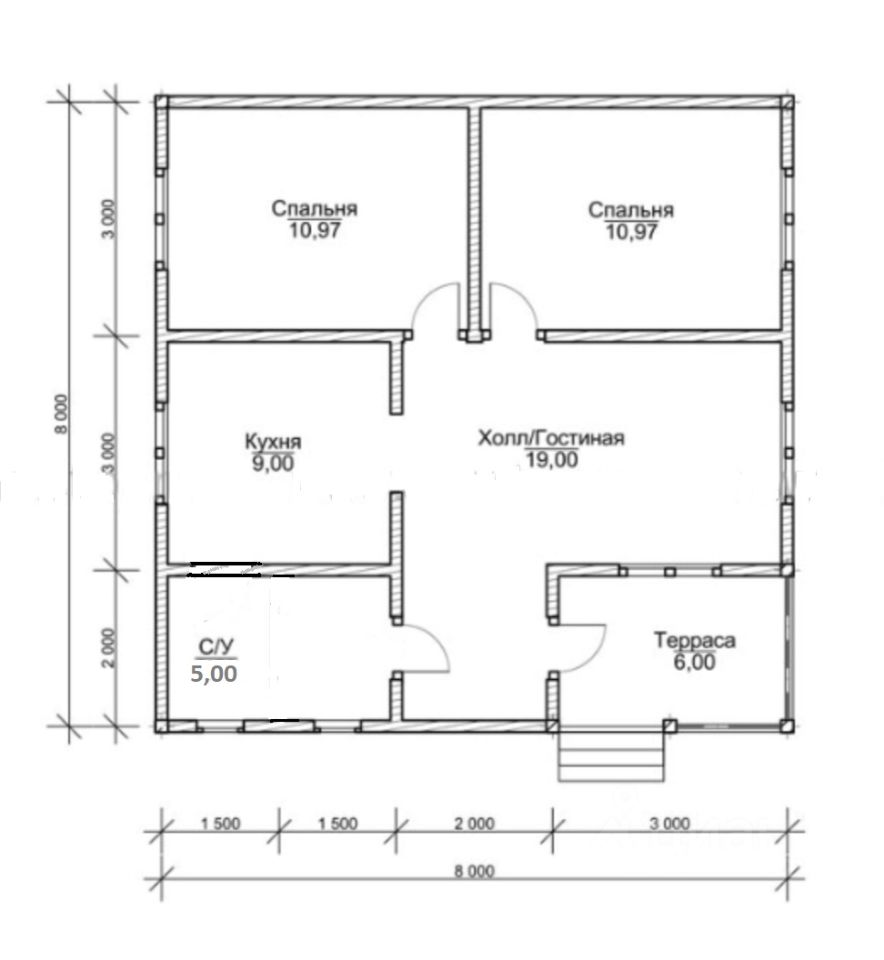
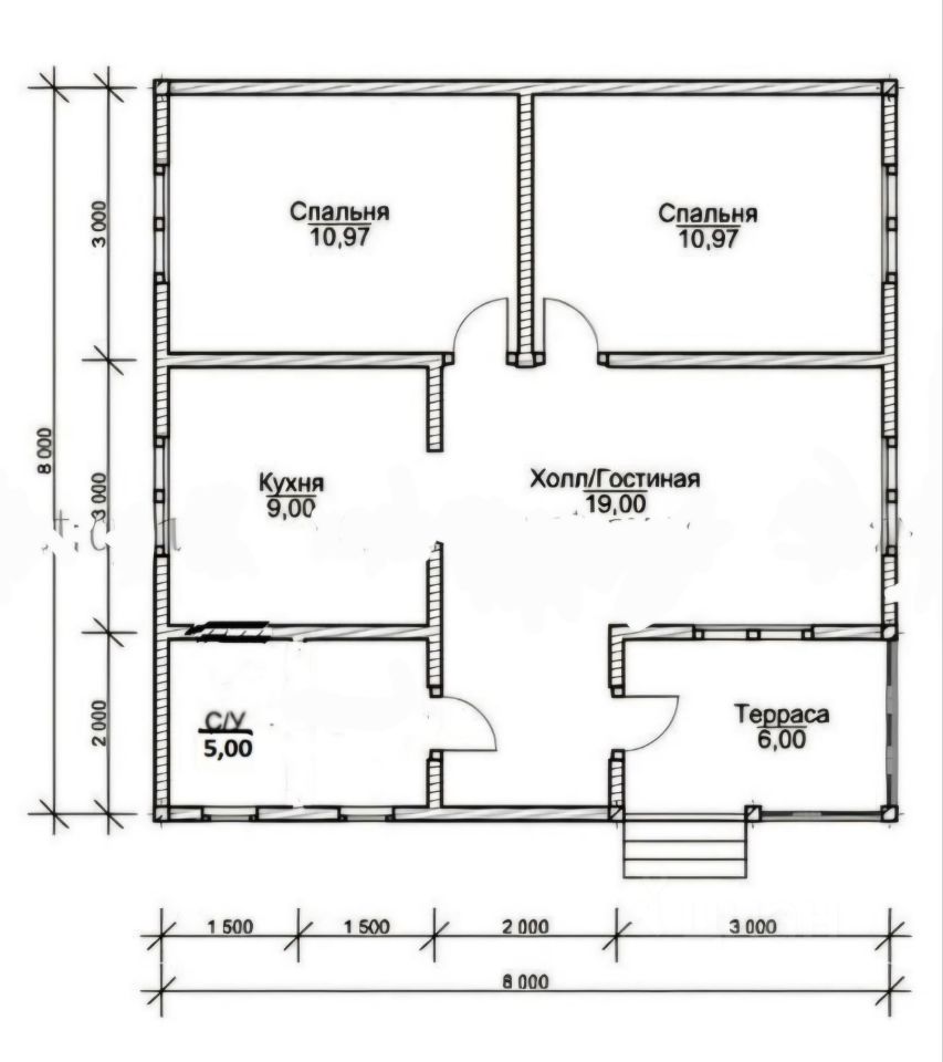
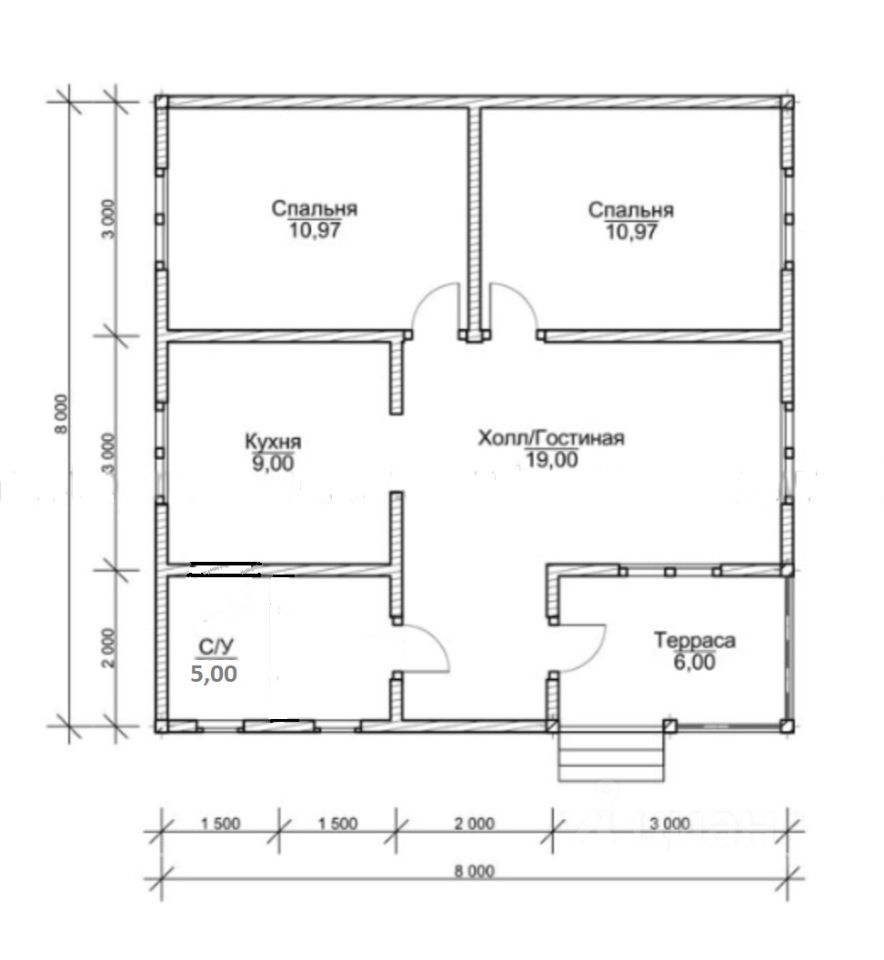
КАРКАСНЫЙ ЖИЛОЙ ДОМ НА ЗЕМЕЛЬНОМ УЧАСТКЕ 15 СОТОК РЯДОМ С ГОР. АЛЕКСАНДРОВ (ДЕР. НАУМОВО).АДРЕС: Владимирская обл., Александровский р-н, дер. Наумово (рядом с г. Александров), 100 км от МКАД по Ярославскому шоссе или 130 км от МКАД по Щелковскому шоссе.ЖИЛОЙ ДОМ: Дом одноэтажный, новый, каркасный (утеплен: стены 150 мм, пол и потолок 100 мм), на свайном фундаменте, размером 9 на 9 метров. Окна ПВХ. Состоит из прихожей, кухни-гостинной,бойлерной с душевой и двух раздельных комнат. Состояние хорошее. При продаже часть мебели остается, часть продается по договоренной цене.ЗЕМЕЛЬНЫЙ УЧАСТОК: Земельный участок 15 соток, ровный, прямоугольной формы, не огорожен, без насаждений. На участке есть деревянная бытовка и деревянный туалет. Участок отмежеван, кадастровый номер: 33:01:000612:1813. Категория земель: земли населенных пунктов. Вид разрешенного использования: для индивидуального жилищного строительства (ИЖС).КОММУНИКАЦИИ: Электричество в дом заведено и разведено по помещениям - 15 кВт. Отопление электрическое - есть электрокотел, система отопления разведена по дому. Канализация отсутствует. Вода - проведена в дом из собственной скважины, глубиной 32 метра. Газ по границе участка - для подключения газа нужно зарегистрировать жилой дом. ДОРОГА: Подъезд отличный, круглогодичный (зимой дороги чистят).ДОКУМЕНТЫ: Земельный участок в собственности. Один совершеннолетний собственник. В собственности с 2025 года. Жилой дом будет оформлен перед продажей.ИНФРАСТРУКТУРА: Деревня расположена в 5 км от деревни Следнево и граничит с городом Александров. Деревня большая, жилая, насчитывает несколько улиц. Расположена деревня в 125 км от Владимира и в 111 км от Москвы. Вся инфраструктура в городе Александров, который насчитывает около 70000 местного населения. Есть прямое сообщение с г. Москва. Через город протекает река Серая. Деревня находится в 30 минутах езды на автомобиле или ж/д транспорте от г. Сергиева Посад Московской области.
75 м2
1 этаж
- Показать контакты
- Добавить в избранное
75 м2
1 этаж
3 950 000
52 667 /м2
