3-к, Комиссарова, 61 Показать на карте
Фрунзенский район
Владимир
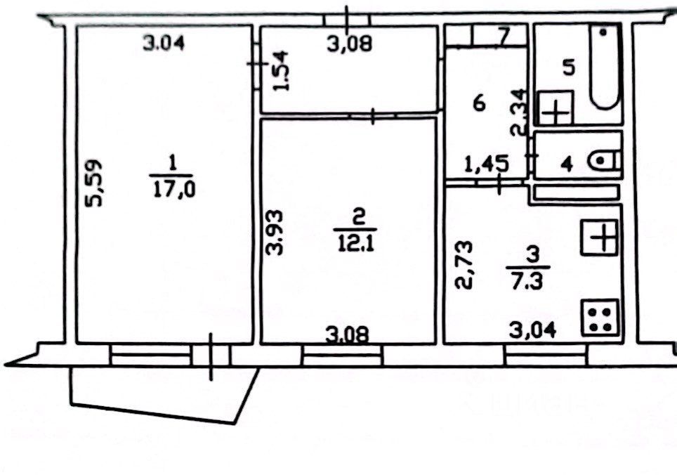
Арт. 71194374 ул. Комиссарова д.61Продаю 3-х комнатную квартиру общей площадью 57,9 кв.м. (1 этаж) в 5-ти этажном панельном доме.Квартира с хорошим ремонтом, окна везде ПВХ выходят на две стороны дома.Балкона нет. Не угловая.В квартире во всех комнатах, в ванной и в туалете натяжные потолки.Ванная комната в кафеле.Новые межкомнатные двери.В подарок покупателю остаётся кухонный гарнитур и шкаф белый в спальне.Квартира готова для проживания. Хорошие соседи.Чистый подъезд и ухоженная придомовая территория.Вокруг дома растут деревья, у каждого подъезда цветочные клумбы и кустарники, детская и спортивная площадка.Парковка под окном.До остановки по маршруту 27 автобуса 5 минут пешком.До остановки ''Парк Добросельский'' на все маршруты по городу 10 минут пешком от дома.Вблизи дома развитая социальная и торговая инфраструктура, всё в шаговой доступности: магазин ''Русич''(хозтовары и стройматериалы для дома), супермаркет Магнит, Пекарня, две школы 5 и 28, детские садики, почта и банк, торговый центр ''Восток'' и рынок овощной, парк ''Добросельский'' и поликлиники.Один собственник. Более 5-ти лет в собственности.Рядом улицы: Егорова, Юбилейная, Добросельская, Растопчина,
57 м2
1 / 5 этаж
Панель
- Показать контакты
- Добавить в избранное
57 м2
1 / 5 этаж
Панель
5 300 000
91 537 /м2
