2-к, Мира, 5 Показать на карте
Октябрьский район
Владимир
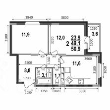
Квартира 3, секция Г, Корпус 1( ЗУ-1) в новостройке напрямую от ЗАСТРОЙЩИКА. Ипотека, материнский капитал, субсидии возможны г. Владимир, ул. Мира, д. 5 Отделка - Без отделки. - ВНИМАНИЕ АКЦИИ! При покупке любой квартиры в ЖК Отражение, ЖК Гвардейский, ЖК Гвардейский 2.0. (строящиеся дома и сданные) стяжка пола в квартире в ПОДАРОК. Скидка при покупке квартиры с ремонтом в сданных и строящихся домах:-Отделка GREY KEY 50% -Чистовая отделка Комфорт -30% При заказе комплекса черновая + чистовая отделки скидки не суммируется, скидка предоставляется с чистовой отделки. - Жилой комплекс ''Отражение'' - это четыре 17-этажных дома класса комфорт в центральном районе города: 5 минут до исторического центра и столько же для того, чтобы выбраться за город и к живописным местам у реки Содышка. Территория застройки комплекса находится между улицами Горького и Мира. Такое удачное расположение сочетает в себе, казалось бы, несовместимое: беспрепятственный доступ к главным дорожным развязкам города, и при этом комфорт и тишину вдали от шумных трасс. Витражное остекление фасадов создает единую поверхность из стекла, в которой отражаются чудесные пейзажи. Увеличенные оконные проёмы дают возможность естественному свету в любое время года максимально проникать в комнаты. Особое внимание уделено обустройству зон общего пользования. Стильная современная отделка подъездов и входных групп, просторные вестибюли с высотой потолков до 4-х метров позволяют почувствовать комфорт уже с парадных дверей. Крышная газовая котельная позволит не только сэкономить на коммунальных платежах, но и избавит от перебоев с горячим водоснабжением. Для Вашего удобства на момент сдачи дома в каждой квартире будут установлены приборы учета. В каждом подъезде будут, колясочные, для жителей с ограниченными возможностями предусмотрена установка электроподъёмников. Для автолюбителей предусмотрены наземный паркинги. Обо всех вариантах покупки и ипотечных программах Вас проконсультирует менеджер отдела продаж по телефону. Звоните!
78 м2
2 / 17 этаж
Монолит
- Показать контакты
- Добавить в избранное
78 м2
2 / 17 этаж
Монолит
10 127 790
129 000 /м2
Новостройка,
IV-2026
IV-2026
